サービス内容

コボシィーの制作物は、現場知識と安全性を大切にしています。

サービス内容のページをご覧いただき、ありがとうございます。
コボシィーでは、ゼネコンで現場監督として働いていた経験を元に作業効率と安全性を高めた、現場で本当に使える図面を意識して作図しています。
現場知識が必要な案件や海外業者任せでは難しい案件など、ぜひご相談ください。

こんな方におすすめです

  • 現場知識がある人に図面やパースを依頼したい
  • 海外業者任せでは難しい案件
  • 品質の良い成果物がほしい
初めてでも安心、お見積もり&ご相談お気軽にどうぞ

work足場計画図

仮設計画図(足場・型枠)・仮設構造計算づくりのプロフェッショナルです。

足場倒壊ゼロを目標に安全、安心の仮設計画図と仮設計算を行っております。
仮設計画図を作図する際に、仮設計算も併用して作業している為、強度が不足していないか確認しながら作業します。その為、創業後に約500現場(2023年11月時点)を担当してきましたが、足場の倒壊は起きておりません。この部分は作図しか出来ない業者には無い信頼して頂けるサービスです。

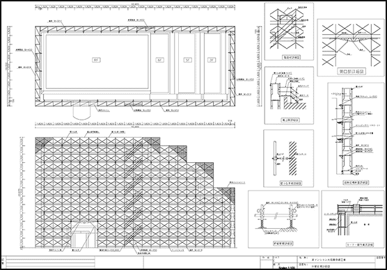
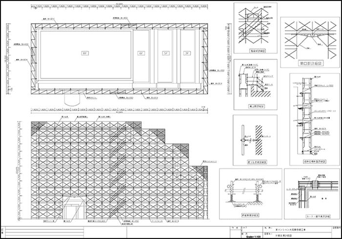
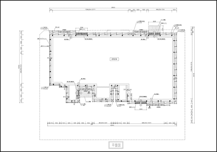
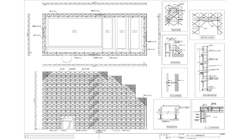
仮設計画図(CAD図面)の事例紹介

お客様のニーズを考慮し、総合仮設計画図から次世代足場、枠組足場、一側足場、躯体トレースにも対応しております。お急ぎの場合は納期も調整致しますので、遠慮なくご相談下さい。

枠組足場計画図
くさび緊結式足場 平面図
くさび緊結式足場 立面図
型枠支保工計画図 一般部
型枠支保工計画図 EV部
初回特別セール 図面&建築パース1枚〜19,800円(税別)〜

workBIM

BIMで建築物を「見える化」効率アップとコスト削減につながります。

BIM(Building Information Modeling)は、建築物や仮設部材を3Dモデリングで詳細に再現し、これによって2Dの設計図では気付かない問題点や誤解を「見える化」し、クライアント、設計者、施工者などの関係者が設計イメージについて誤解や不明確さを減らし、情報を効果的に共有できる画期的なツールです。

私が建設業界に入った2005年頃は、まだCADでの作業がメインでしたが、この10年位で作図をBIMで行う会社が増えてきました。増えてきた主な理由は、建設業界における効率性向上、品質向上、コスト削減等の需要増加など、さまざまな要因が組み合わさっています。

BIMで「見える化」することで、
クライアント、設計者、施工者と情報共有が効果的に!

弊社では、BIMを使った仮設計画図を作成できます

仮設計画図をBIMで作業する上記以外の利点は…

2D図面だとわからない納まりがわかりやすく、足場組立業者に伝わりやすい。
足場部材の数量をリスト化可能。部材を拾う時間が短縮できる。
平面、立面、断面が連動していて修正時間が短縮できる。
BIM作例 BIM作例

work建築パース

ご要望に合うパース作成様々なテイストに対応可能です

リアルなパース、スケッチ風なパース等、お客様の要望に合わせて作成します。お急ぎの場合は納期も調整致しますので、遠慮なくご相談下さい。
詳細につきましては、お問い合わせください。

使用ソフト:sketchup+Lumion

外観 / 内観パース
鳥瞰図
トイレパース

workスケッチ風パース

スケッチ風なパースに関しても、お客様の要望に合わせて作成します。お急ぎの場合は納期も調整致しますので、遠慮なくご相談下さい。
詳細につきましては、お問い合わせください。

スケッチ風パース作例 スケッチ風パース作例 スケッチ風パース作例 スケッチ風パース作例

work改修工事 提案資料

マンション、商業施設などの改修工事むけプレゼン資料・図面作成

戸建てやマンションリフォーム工事の需要は年々拡大しており、コロナ禍以降は新築着工数が減少する一方で、既存住宅の改修·リノベーション需要が大きく伸びています。
新築価格の高騰や少子高齢化や建物の老朽化を背景に、マンションの大規模修繕工事やリフォームは今後も成長が期待される分野です。

改修工事を受注するために重要となるのが、管理組合や個人世帯へのわかりやすい提案力です。

私は某ゼネコンにおいてマンション大規模修繕工事の施工管理·設計·積算を活かし、以下の業務を提供いたします。

  • お客様が打合せしてきた内容を参考に改修提案図面の作成
  • イメージCGパースやVR(仮想現実)による提案資料の作成
  • 施工計画図(施工図·仮設計画図)の作成

建物の資産価値を維持·向上させるための提案をサポートいたします。

足場図Jww / Autocad
外観モデリングsketchup + podium + photoshop
内観パースsketchup + podium + photoshop

workVR(仮想現実)

住宅イメージ・施工用CGパース・VR(仮想現実)作成

戸建て住宅、マンションを新築・改修する際、図面ではイメージ出来ない所があると思います。プレゼン用のイメージ図の作成はもちろん、施工用のパースも作成します。

設計者と打ち合わせする時間も無く、施工してからこんな仕上がりだったのかと初めて知る事は多いでしょう。他社のパース業者では意匠的に上手く魅せる事は容易でも、施工的な知識を持った作図者が多いとは考えられません。なぜなら、施工管理を経験してきた人がCGも出来るという人を私は見たことが無いからです。

私は以前、ハウスメーカーの設計職と某ゼネコンでマンション・商業施設等の改修工事で施工管理・設計・積算をしていました。その経験を活かし、施工イメージCGパース、VR(仮想現実)の提案書作成、施工計画図の作成を致します。

VR作例
内観パース
VR作例
VR画像

VR作成の流れ

2D図面(紙データでも可)を基に3Dモデリング
VR用画像のレンダリング
VR変換ソフトにてURLを作成
URLを入力すればOK