


アトリエコボシィーは、単に図面やパースを制作するだけではありません。
現場での経験を活かし、作業効率と安全性を高める図面を提供します。
小ロットのご依頼も大歓迎です。まずはお気軽にご相談ください。
ぜひ体験していただきたい、コボシィーの良いところを集めてみました。
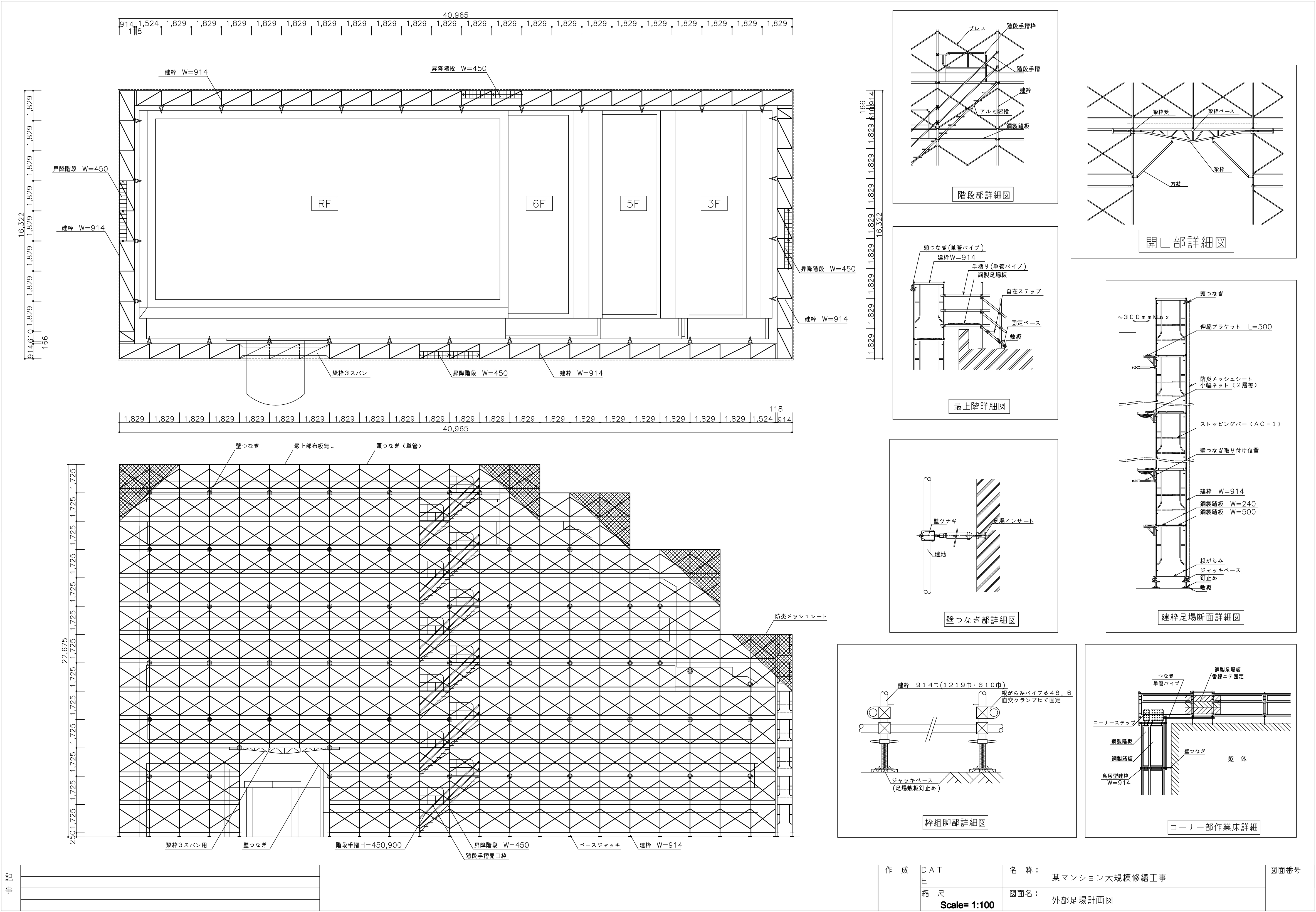
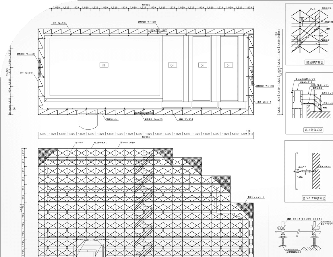
作図の実績は500件以上。安心してご依頼いただけます。経験豊富なスタッフが作図しながら強度計算書も作成するので、足場の強度が持つ安全な図面をご提供可能。作図のみの業者には無い、信頼して頂けるサービスです。複雑な組み方の強度計算書についてもご相談いただけます。
どんな建物でも柔軟に対応が可能です。
以下をはじめとした建物に対応いたします。
お気軽にお問合せください。
くさび緊結式足場
枠組足場
マンション
病院
商業施設
オフィス
教室
ホテル
テーマパーク
ゼネコンで現場監督として働いた経験に元づいて作図しています。そのため、現場で本当に使える図面を意識してお作りすることが可能です。
図面制作からBIM、VRまで。幅広くご提供が可能です。
メール/クラウドサービス
CAD図面のファイル形式:DWG/JWW/PDF
最短7営業日